THE STONE COURT LANDSCAPE

The Design has been reimagined through a Luxury Modern lens, creating a bright, inviting, and sophisticated outdoor environment that reflects the client’s lifestyle and preferences.

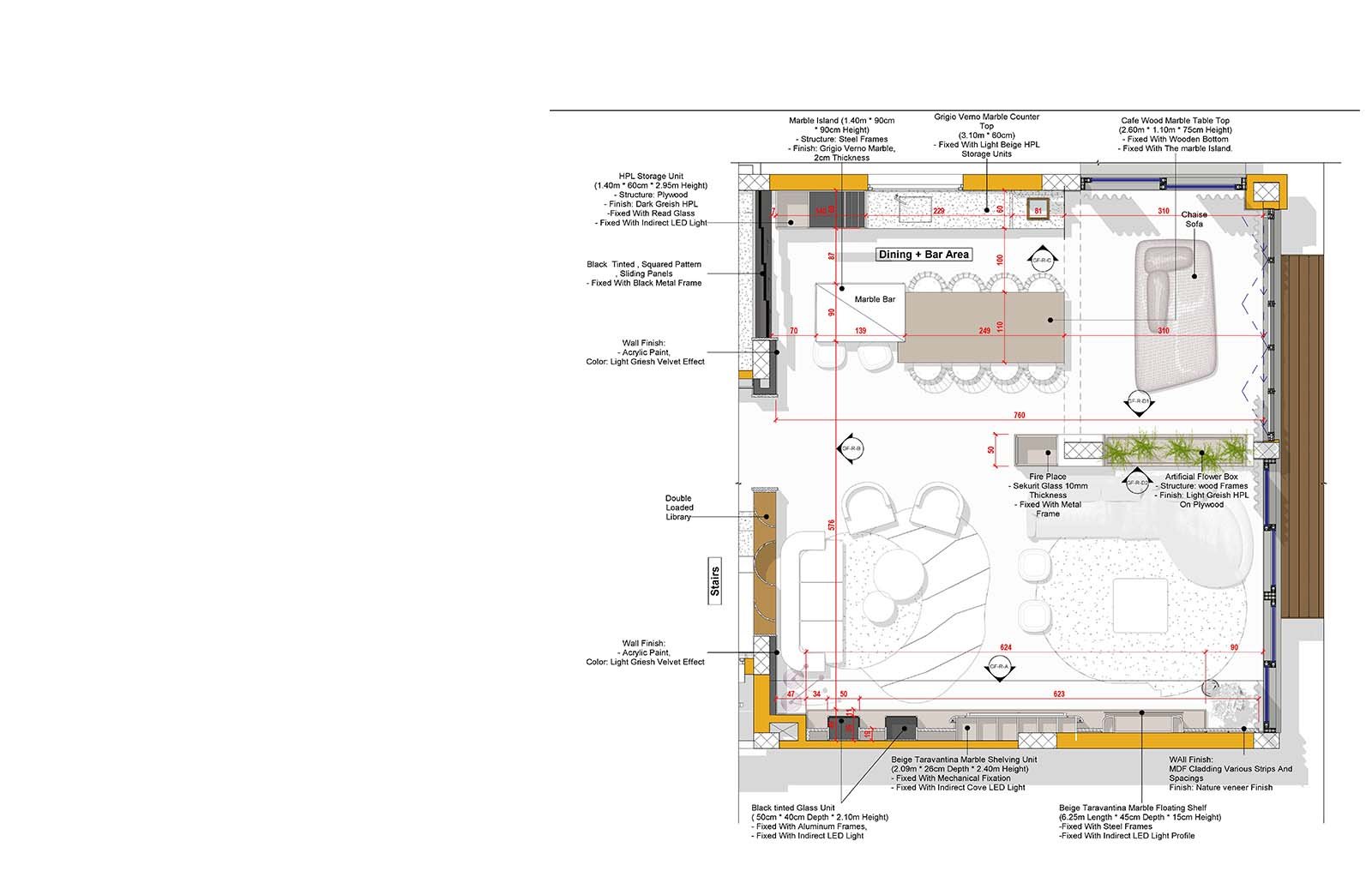
High-quality materials, including thermal wood and travertine marble, are thoughtfully integrated to enhance elegance, warmth, and durability.

Outdoor spaces are designed as luxurious yet comfortable zones, featuring integrated seating areas that encourage relaxation, social gatherings, and seamless interaction with the surrounding environment. A lush, layered softscape—including exotic plantations, —adds texture, vibrancy, and character, defining the project’s distinctive identity.

Iconic hardscape elements and carefully curated art installations are incorporated to create striking focal points, ensuring the outdoor experience is dynamic, memorable, and visually engaging.

The result is a refined and immersive outdoor environment where modern aesthetics, premium materials, and thoughtful landscaping converge to deliver a truly captivating and inviting space.


Discipline: Interior Design , Landscape Design & MEP

Sector: Residential Mansion | Landscape

Area: 950.00 SQM

THE STONE COURT LANDSCAPE

The Design has been reimagined through a Luxury Modern lens, creating a bright, inviting, and sophisticated outdoor environment that reflects the client’s lifestyle and preferences.

High-quality materials, including thermal wood and travertine marble, are thoughtfully integrated to enhance elegance, warmth, and durability.

Outdoor spaces are designed as luxurious yet comfortable zones, featuring integrated seating areas that encourage relaxation, social gatherings, and seamless interaction with the surrounding environment. A lush, layered softscape—including exotic plantations, —adds texture, vibrancy, and character, defining the project’s distinctive identity.

Iconic hardscape elements and carefully curated art installations are incorporated to create striking focal points, ensuring the outdoor experience is dynamic, memorable, and visually engaging.

The result is a refined and immersive outdoor environment where modern aesthetics, premium materials, and thoughtful landscaping converge to deliver a truly captivating and inviting space.


Discipline: Interior Design , Landscape Design & MEP

Sector: Residential Mansion | Landscape

Area: 950.00 SQM

LET’S DISCUSS YOUR PROJECT LET’S DISCUSS
YOUR PROJECT

LET’S TALK

EVERY PROJECT BEGINS WITH A CONVERSATION. WHETHER YOU HAVE A CLEAR VISION OR AN EARLY IDEA, WE’RE HERE TO LISTEN, EXPLORE POSSIBILITIES, AND DEFINE THE RIGHT DIRECTION TOGETHER. REACH OUT AND LET’S START SHAPING YOUR PROJECT.

©2026 | DESIGN SECTOR | ALL RIGHTS RESERVED
MADE BY THE CREATIVE TEAM

LET'S TALK.

LET'S TALK

PLEASE TELL US ABOUT YOURSELF — ONCE WE REVIEW YOUR INFORMATION, OUR TEAM WILL GET BACK TO YOU AS SOON AS POSSIBLE.

Thank you!