THE MODERN VILLA

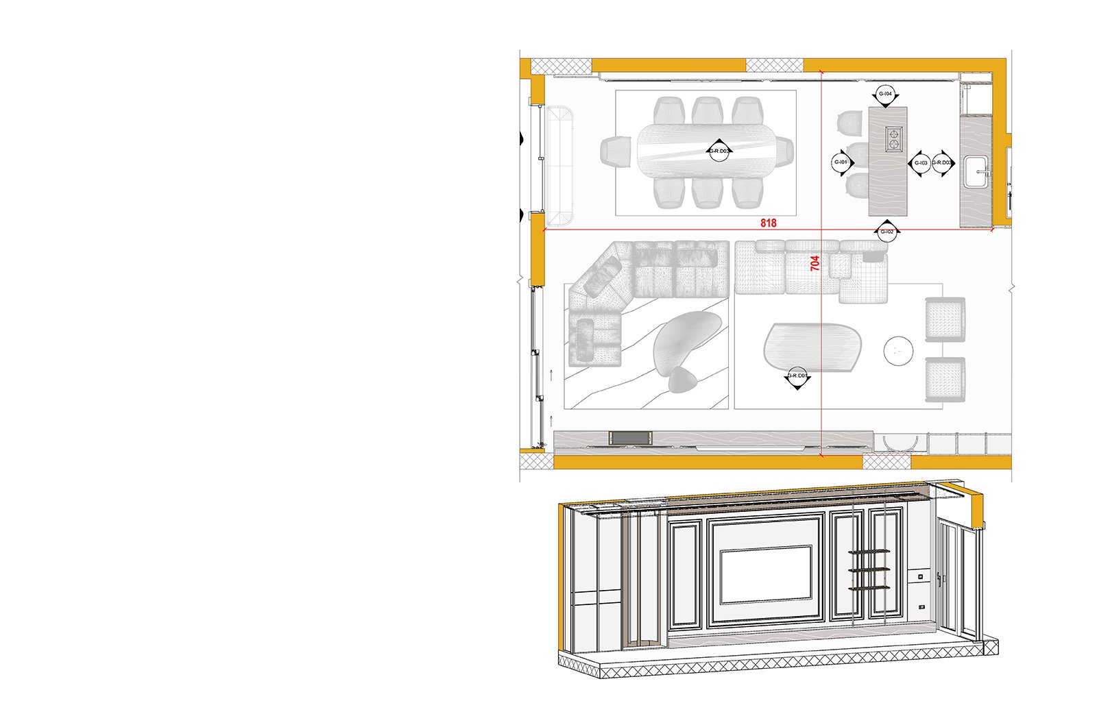
The villa’s overall interior design has been thoughtfully re-envisioned through a Contemporary Luxury approach, creating a bright, elegant, and welcoming atmosphere that aligns perfectly with the client’s functional and aesthetic aspirations.

A carefully curated palette of timeless materials, including refined wall paneling and subtle marble patterns, has been employed to enhance warmth, sophistication, and enduring appeal throughout the home.

Spanning three floors, the villa presents a distinct character on each level.

The ground floor is dedicated to the guest areas, forming the main focal point of the design with spaces that are formal yet inviting.

The first and second floors reflect the client’s personal spirit and lifestyle, with the first floor emphasizing comfortable, cozy, and functional living zones for everyday use, thoughtfully arranged to balance simplicity and elegance.

Discipline: Interior & Landscape

Sector: Residential Villa

THE MODERN VILLA

The villa’s overall interior design has been thoughtfully re-envisioned through a Contemporary Luxury approach, creating a bright, elegant, and welcoming atmosphere that aligns perfectly with the client’s functional and aesthetic aspirations.

A carefully curated palette of timeless materials, including refined wall paneling and subtle marble patterns, has been employed to enhance warmth, sophistication, and enduring appeal throughout the home.

Spanning three floors, the villa presents a distinct character on each level.

The ground floor is dedicated to the guest areas, forming the main focal point of the design with spaces that are formal yet inviting.

The first and second floors reflect the client’s personal spirit and lifestyle, with the first floor emphasizing comfortable, cozy, and functional living zones for everyday use, thoughtfully arranged to balance simplicity and elegance.

Discipline: Interior & Landscape

Sector: Residential Villa

LET’S DISCUSS YOUR PROJECT LET’S DISCUSS
YOUR PROJECT

LET’S TALK

EVERY PROJECT BEGINS WITH A CONVERSATION. WHETHER YOU HAVE A CLEAR VISION OR AN EARLY IDEA, WE’RE HERE TO LISTEN, EXPLORE POSSIBILITIES, AND DEFINE THE RIGHT DIRECTION TOGETHER. REACH OUT AND LET’S START SHAPING YOUR PROJECT.

©2026 | DESIGN SECTOR | ALL RIGHTS RESERVED
MADE BY THE CREATIVE TEAM

LET'S TALK.

LET'S TALK

PLEASE TELL US ABOUT YOURSELF — ONCE WE REVIEW YOUR INFORMATION, OUR TEAM WILL GET BACK TO YOU AS SOON AS POSSIBLE.

Thank you!